PREDAJ

Moderný dom ukrytý za nenápadným vizuálom z ulice

Rodinný dom
1 050 000 €
293,61 m²
655 m² (Plocha pozemku)
Anízová 9, Bratislava II - Vrakuňa

Na prvý pohľad pôsobí tento rodinný dom z ulice nenápadne — takmer splýva s okolím. No už po vstupe zažijete okamžitý wow efekt. Otvorená denná zóna s veľkoformátovým celostenovým presklením a čarovným átriom s výhľadom na zeleň vás vtiahne do priestoru, ktorý dýcha svetlom, pokojom a nadčasovou eleganciou.

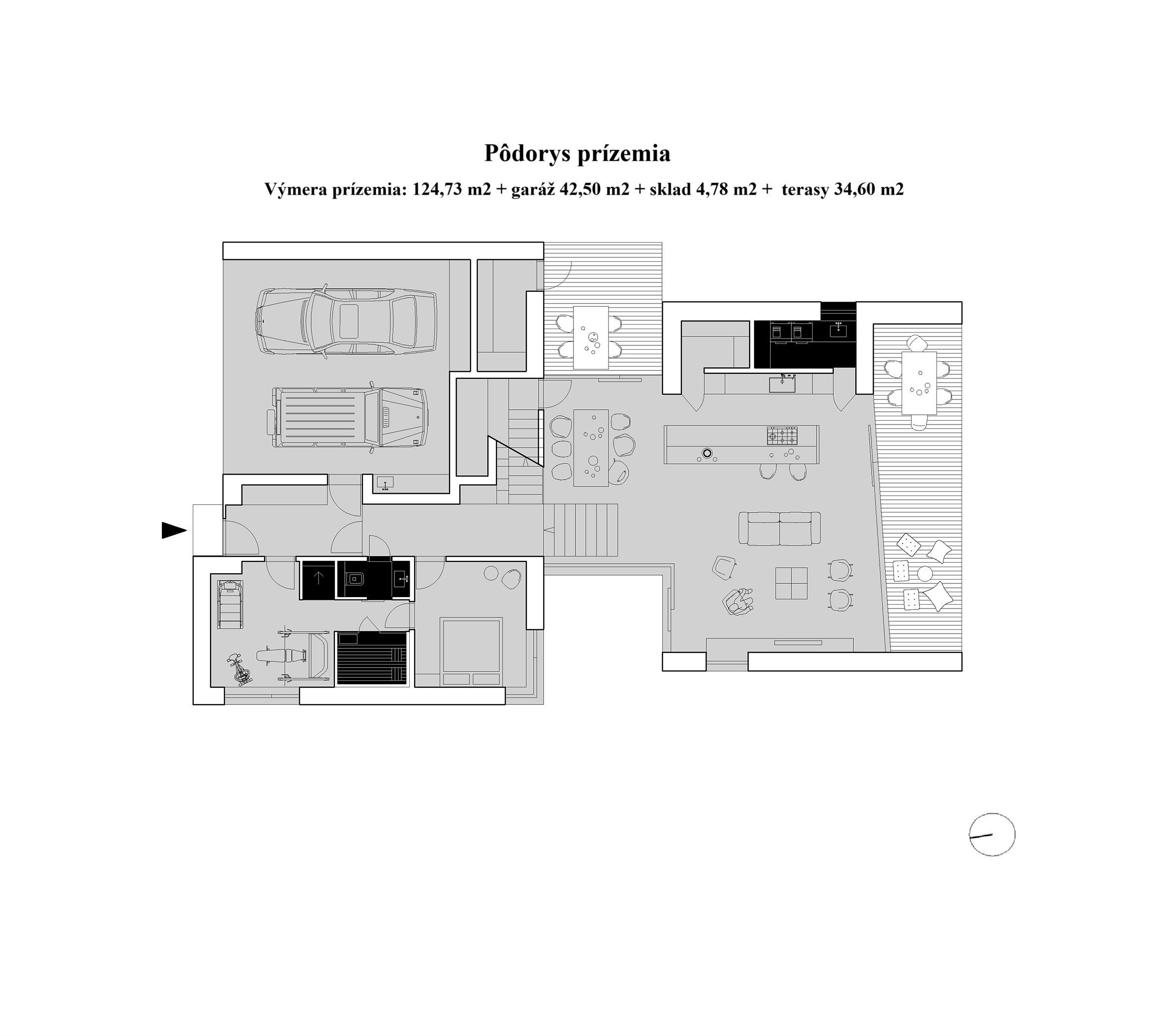
Tento moderný dom je skutočným architektonickým skvostom. V každom detaile sa spája estetika s funkčnosťou — od štýlového oceľovo-dreveného schodiska, pracovného ostrovčeka z liateho betónu v kombinácii s drevom a zabudovaným krbom, cez strešné svetlíky, ktoré presvetľujú aj tie najhlbšie časti interiéru, až po starostlivo navrhnuté technické miestnosti.

Dom leží na pozemku s výmerou 655 m² a ponúka celkovú úžitkovú plochu 293,61 m². V interiéri prevládajú kvalitné materiály — drevené a liate podlahy, kombinácia liateho betónu a dreva, masívne schodisko, nábytky na mieru, bezfalcové dvere na mieru až po strop, hliníkové okná s trojsklom, exteriérové žalúzie.

Z technického hľadiska je dom špičkovo vybavený — inteligentná domácnosť, podlahové teplovodné vykurovanie, tepelné čerpadlo + rezervný elektrický kotol, solárne panely a dôsledne riešená energetická efektivita.

Jedným z najväčších rozdielov oproti iným novostavbám je záhrada s vyrastenou zeleňou a fasáda domu obrastená brečtanom, ktoré poskytujú úplné súkromie. Záhrada je vizuálne aj pocitovo oddychovou zónou vďaka automatickej závlahe. Výnimočné prepojenie interiéru s prírodou podporuje aj zastrešená terasa z dennej zóny.

Súčasťou domu je aj dvojgaráž pre dve autá, vlastná workout zóna so saunou a inteligentne riešené skladové a technické priestory.

Lokalita na začiatku Vrakune ponúka pokojné rodinné prostredie s výbornou dostupnosťou do centra Bratislavy a vynikajúcou občianskou vybavenosťou.

Video

Moderný dom ukrytý za nenápadným vizuálom z ulice
JUDr. Silvia Rašková
JUDr. Silvia Rašková

Realitná maklérka

+421 918 205 525

raskova@forareality.sk

Máte záujem o túto nehnuteľnosť?

Mám záujem